Новости
03.04.2012 г.
Компания POLEX осуществляет прямые поставки кубовых емкостей и еврокубов объемом 640, 1000 и 1250 литров из Германии от известного европейского производителя SHUTZ.
Приглашаем торговые компании к сотрудничеству.
29.03.2012 г.
Компания осуществляет изготовление полимерных колодцев для различных объектов строительства для городских и частных проектов.
Что нужно для производства колодцев? Предоставьте нам проектную документацию и мы подготовим...
27.03.2012 г.
Компания начала серийный выпуск дачных душевых кабин для летнего душа в 12 модификациях: душевая кабина из металла и пленки ПВХ, дачный душ из поликарбоната, дачные душевые кабины с раздевалкой двухсекционные и односекционные....
27.03.2012 г.
В ледовом дворце г.Заволжье прошла очередная встреча команд Нижегородской молодежной хоккейной лиги
при поддержке компании POLEX
27.03.2012 г.
27 февраля "Нижегородское кольцо" брали штурмом пилоты Д2Н
претенденты на Кубок губернатора Нижегородской области по зимним
кольцевым гонкам в этом классе автомобилей. Каждому из 16 участников
нужно было сделать по...
27.03.2012 г.
Компания с начала 2012 приступила к промышленному производству пластиковых баков для летнего душа объемом 150 л.
Руководство компании приглашает к сотрудничеству торговые, коммерческие организации по реализации
пластиковых...
13.03.2012 г.
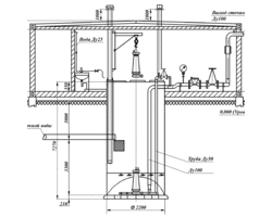
Уважаемые заказчики и партнеры, на сайте появилась возможность размещения заказа и технических
данных на производство и расчет промышленных и бытовых канализационных нососных станций
«POLEX KNS» в полиэтиленовой и...
13.03.2012 г.
На нашем сайте Вы можете разместить заказ и технические данные, требования на производство заказных
резервуаров, ванн, емкостей «POLEX PLAST» объемом от 100 до 2000 м3 «Онлайн»
23.09.2011 г.
Группа компаний ПОЛекс провела сертификацию производства, работы на требования
международного стандарта ГОСТ Р ИСО 9001-2008 (ISO 9001)
23.09.2011 г.
Успешно произведены первые емкости для хранения жидкостей больших диаметров вертикального исполнения из стеклопластика,
на передвижном заводе. Изделия изготавливаются методом автоматической вертикальной намотки на месте...











